Kallingevägen 20

Ronneby centralt, Ronneby

Hyreshus med centralt läge i Ronneby!

Hyreshus med centralt läge i Ronneby ! Fastigheten innehåller två stycken lägenheter en 4rok och en 3rok som är renoverade år 2008-2009 och 2021. Utvändigt är taket bytt och bostadens fasad är ommålad 2018. Lägenheterna är uthyrda med hyreskontrakt som följer försäljningen. Bra centralt läge med närhet till samhällets service och kommunikationer. Möjlighet finns att i framtiden bo i en av lägenheterna själv när det blir ledigt och då ha ett prisvärt boende med centralt läge.

Fakta

Utgångspris
3 100 000 kr
eller högstbjudande
Fast.beteckning:

Gjutaren 6

Rum

7 st

Sovrum

5 st

Boarea

192 m²

Biarea

44 m²

Tomtarea

569 m²

Byggnadstyp

1 ½ plan med källare

Byggnadsår

1920-tal ombyggt 2008-2009.

Fastighetsmäklare

Profil

Bengt Folkesson

0708-117835

b.folkesson@sydostfastigheter.se

Övrigt

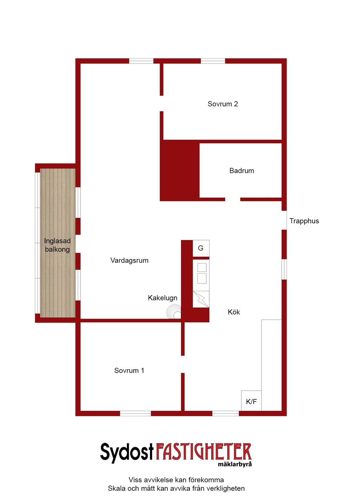
Huset är ett 1,5 plans hus med källare byggt på 1920-talet i trä med yttertak av takpannor, källare uppförd med gråsten och betong. Det finns två lägenheter i huset en 4rok på entréplan och en 3rok på övervåningen. Lägenheterna är helrenoverade och delvis ombyggda 2008-2009. Lägenheterna renoverades senast år 2021 med nytt kök, vitvaror, spishäll, inbyggnadsugn, diskmaskin, mikrovågsugn, fläkt, ny tvättstuga, nya golv, tapetserat och målat på entréplan i fyran. I trean på övervåningen nytt kök, vitvaror som spishäll, inbyggnadsugn, diskmaskin, mikrovågsugn, fläkt, tapetserat, målat bytt alla golv, ny badrumsinredning och installerat nya luft-luft värmepumpar i båda lägenheterna. Lägenheterna hyrs med avtal om kallhyra hyresgästerna står för uppvärmningen och hushållsel själva i sina lägenheter. Huset värms upp med el-element samt luft-värmepump i båda lägenheterna. Det finns även flera kakelugnar i bostaden varav 1 i vardagsrum på på entréplan som kan användas för extra tillskottsvärme och en vedspis i köket. På övervåningen finns det 1 kakelugn i vardagsrum som är godkänd att använda. Hyreskontrakten följer försäljningen av fastigheten. Hyresintäkter 147 600 kr/år. Fiberkabel finns installerad i bostaden. Det finns en Friggebod på tomten byggd 2015 som innehåller två förråd ett till varje lägenhet. Det finns också ett äldre uthus som används till cykel förråd m.m. Denna byggnad är av äldre standard. På tomten finns det ett ute däck i trä, gräsmatta, några fruktträd och en mindre bilparkering för 2 stycken bilar.

Tomt

Trädgård med gräsmatta, fruktträd, prydnadsbuskar.

Det finns några uteplatser i trädgården varav en med ett trä-däck.

Planbestämmelser

Stadsplan (1984-11-13) Tomtindelning (1910-11-11)

Servitut, ga, samfälligheter, etc

Last: Avtalsservitut Ledning mm, 10-IM2-90/687.1 Avtalsservitut Ledning mm

Bilplats

På tomten finns några parkeringsplatser.

Bredband

Finns installerad.

Ventilation

Självdrag.

Vatten och avlopp

Kommunalt vatten, Kommunalt avlopp.

Energideklaration

Utförd

Utförd: 26/4 2021

Klass

G

Förbrukning

161 kWh/kvm per år

Elektricitet

Nätbolag

Miljöteknik

Drift per år

Försäkring

6 000 kr

Vatten/avlopp

14 900 kr

Sotning

1 500 kr

Renhållning

3 793 kr

Summa

26 193 kr

Hyresgästerna betalar själva uppvärmning och hushållsel.

Taxeringsuppgifter

Typkod

220, Småhusenhet, bebyggd.

Totalt

2 091 000 kr

Byggnad

1 795 000 kr

Mark

296 000 kr

Skatt/avgift

10 074 kr

Taxeringsår

2024

Värdeår

1969

Pantbrev

Summa

1 462 500 kr

Antal

12 st

Närområde

Äldre hus och lägenheter.

Parkering

På tomten.

Kommunikation

Buss och tågstation inom promenadavstånd. Flygplats ca 10 minuter med bil.

Närservice

Inom promenadavstånd livsmedelsaffär, skolor, tandläkare, restauranger, pizzeria, biograf m.m.

Byggnad

Typ

1 ½ plan med källare

Byggår

1920-tal ombyggt 2008-2009.

Bjälklag

Trä

Utv plåtarbete

Galvaniserad plåt

Fasad

Trä

Grund

Gråsten/btg

Grundmur

Gråsten/btg

Stomme

Trä

Uppvärmning

Luft-luft värmepumpar en till varje lägenhet och el-element.

Tak

Takpannor

Fönster

isolerglas och tvåglasfönster

Renoveringar

Utförda 2008-2009 och senast 2021 då man installerade nytt kök med skåp, bänkar och nya vitvaror i fyran på entréplan och även nya golv, ny tvättstuga, tapetserat och målat i hela lägenheten. I trean på övervåningen så har man nytt kök, nya vitvaror, tapetserat, målat och bytt alla golv. Ny badrumsinredning. Dagvattenledningar med ytvatten från yttertaket omgjorda år 2022.

Övriga byggnader

En friggebod byggd år 2015 som har två förråd ett till varje lägenhet. Ett äldre uthus som används till cykel garage och förråd.


Karta



Bilder